24h Baleares.

24h Baleares.

Educación lanza un concurso para el diseño del nuevo Districte de les Arts.

Educación lanza un concurso para el diseño del nuevo Districte de les Arts.

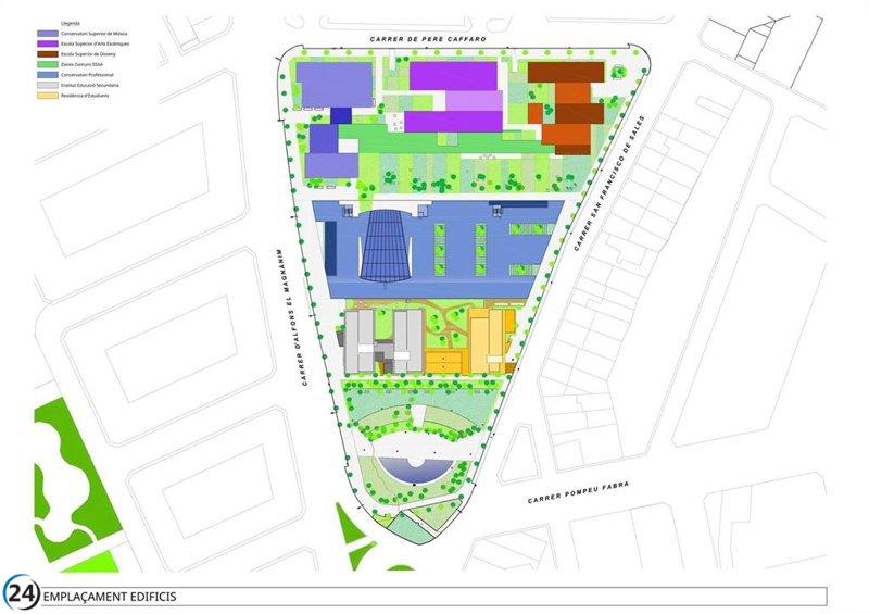
En Palma, el 7 de abril, la Conselleria de Educación y Universidades, a través del Instituto Balear de Infraestructuras y Servicios Educativos (Ibisec), ha lanzado un concurso de ideas destinado a desarrollar los proyectos del Conservatorio Superior de Música, la Escuela Superior de Arte Dramático y la Escuela Superior de Diseño. Estas instituciones formarán parte del nuevo Districte de les Arts, que se ubicará junto al actual Conservatorio, marcando un hito en la educación artística de la región.

Además de las citadas escuelas, el complejo incluirá una residencia universitaria que podrá albergar a 120 personas, así como un nuevo instituto de estudios integrados (PEI). Esta información ha sido divulgada a través de un comunicado de prensa del departamento que dirige Antoni Vera, subrayando la relevancia de este desarrollo en el contexto educativo balear.

El proceso para la selección de proyectos se inició con la publicación del concurso en el Diario Oficial de la Unión Europea (DOUE) y en la Plataforma de Contratación del Sector Público. De esta manera, se abre una ventana para que arquitectos y estudios de arquitectura presenten sus credenciales y experiencia durante el primer mes de la convocatoria.

Una comisión evaluadora, que escogerá a los tres mejores equipos, evaluará las propuestas iniciales. Posteriormente, en una segunda fase, estos finalistas presentarán sus ideas de forma anónima, identificándose únicamente con un lema distintivo, lo que garantiza un proceso justo y equitativo.

El jurado, compuesto por 12 miembros que incluyen al director general de Vivienda y Arquitectura, así como a técnicos del Ibisec y de la Conselleria de Educación y Universidades, junto con los directores de las nuevas escuelas, será responsable de calificar las propuestas en función de criterios técnicos. Una vez elegido el proyecto ganador, se hará pública la identidad de los finalistas.

El equipo que resulte seleccionado recibirá un premio de 15.000 euros y tendrá la responsabilidad de llevar adelante el proyecto básico y ejecutivo, así como la dirección de la obra del Conservatorio y de las escuelas, con un presupuesto estimado de 2,2 millones de euros. Por su parte, los segundos y terceros clasificados también serán reconocidos con un premio de 10.000 euros cada uno.

Este marzo, la presidenta del Govern, Marga Prohens, junto al conseller de Educación y Universidades, Antoni Vera, presentó oficialmente el proyecto del Districte de les Arts, reafirmando su compromiso con el desarrollo y la mejora de los estudios superiores artísticos en el archipiélago.

El nuevo Districte de les Arts, que forma parte del Plan de Inversiones Educativas, prevé una superficie total de aproximadamente 20.000 m2, con una inversión cercana a los 70 millones de euros. Esta iniciativa tiene como finalidad no solo elevar la calidad de la oferta educativa artística, sino también aumentar su visibilidad y accesibilidad para toda la comunidad.

El proyecto incluye la creación de un entorno educativo innovador, donde los edificios estarán integrados en un amplio parque urbano, promoviendo así la interacción entre la arquitectura, la naturaleza y la creatividad. Este enfoque holístico busca enriquecer la experiencia educativa y cultural.

Según informan desde el Govern, esta propuesta no solo busca fortalecer la formación artística, sino que también aspira a fomentar la conexión entre el talento emergente y la comunidad. Además, consolidará el Districte de les Arts como un referente en innovación y creación cultural, contribuyendo al dinamismo del sector en la región.